Search

Leave a Message

Thank you for your message. We will be in touch with you shortly.

Explore Our Properties

Property Description

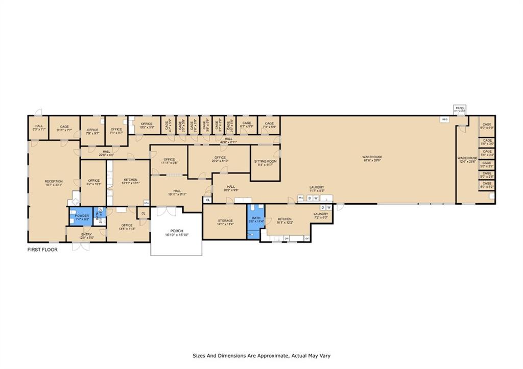
PRIME COMMERCIAL PROPERTY ON LA HWY 25 - Located on the south side of Folsom, this exceptional C2-zoned commercial property offers 1.37 acres and 194 feet of highway frontage for maximum visibility. A 5,660 sq. ft. metal building includes office space, a dedicated workroom, and multiple storage areas, making it ideal for various business ventures. Amenities include:Wired for 3-phase electrical, Natural gas hookup available, Heavy-duty industrial doors, Extra-large driveways & reinforced parking areas, Flexible layout--easily adaptable for multiple uses. This high-traffic location presents a fantastic opportunity for your next commercial endeavor. Current use is a veterinary clinic and the business with equipment is available.

Overview

Property Status
For Sale
Lot Size
1.25 Acres
MLS ID
2485898
Property Type
Commercial
Year Built
2005

Features & Amenities

Total Area
5,660 Sq.Ft.
Stories
1
Water Source
Public
Lot Features
1 to 5 Acres, City Lot
Parking
Garage, Parking Lot, Three or more Spaces
Sewer
Septic Tank
Disability Features
Accessibility Features
Sales Price
$925,000
Zoning
C2

Downloads

82060 HIGHWAY 25 Highway

Schedule a Tour

We would love to help you see this beautiful home! As a full-service brokerage, we can help you tour. Please submit an offer, and answer questions about the buying process.

Enter a valid email

Thank you

for your interest in 82060 HIGHWAY 25 Highway, Folsom, LA 70437

back to page
82060 HIGHWAY 25 Highway
Navigate
  • Located on the south side of Folsom, this exceptional C2-zoned commercial property offers 1.37 acres and 194 feet of highway frontage for maximum visibility.

    Jennifer Rice & Lauren Mendheim

Mortgage Calculator

Estimate your monthly mortgage payment, including the principal and interest, property taxes, and HOA. Adjust the values to generate a more accurate rate.
$0,000 Your Payment 20 15 65
$0,000 Your Payment

I'm Interested In

82060 HIGHWAY 25 Highway

or
  • CallJennifer Rice

    License #14564

    (985) 892-1478
  • Active Listings

    Featured Properties

    • 622 S AMERICA Street For Sale

      $4,950,000

      622 S AMERICA Street, Covington, LA 70433

      • 5 Beds
      • 6 Baths
      • 5,051 Sq.Ft.
    • 194 BELLE TERRE Boulevard For Sale

      $3,500,000

      194 BELLE TERRE Boulevard, Covington, LA 70433

      • 6 Beds
      • 5 Baths
      • 7,810 Sq.Ft.
    • 206 & 212 ATALIN Street For Sale

      $3,500,000

      206 & 212 ATALIN Street, Mandeville, LA 70448

      • 1,413 Sq.Ft.
    • 123 N DOGWOOD Drive For Sale

      $2,900,000

      123 N DOGWOOD Drive, Covington, LA 70433

      • 5 Beds
      • 7 Baths
      • 9,989 Sq.Ft.
    • 605 S AMERICA Street For Sale

      $1,900,000

      605 S AMERICA Street, Covington, LA 70433

      • 4 Beds
      • 5 Baths
      • 4,696 Sq.Ft.
    • 1001 JULIA Street 14E For Sale

      $1,890,000

      1001 JULIA Street 14E, New Orleans, LA 70113

      • 3 Beds
      • 4 Baths
      • 1,828 Sq.Ft.
    • 291 SHENANDOAH Lane For Sale

      $1,750,000

      291 SHENANDOAH Lane, Covington, LA 70435

      • 4 Beds
      • 4 Baths
      • 3,936 Sq.Ft.
    • 501 LOGAN ISLAND Court For Sale

      $1,632,500

      501 LOGAN ISLAND Court, Slidell, LA 70458

      • 4 Beds
      • 5 Baths
      • 4,891 Sq.Ft.
    • 56.30 Acres HOUGH Road For Sale

      $1,548,250

      56.30 Acres HOUGH Road, Madisonville, LA 70447

    • 830 S MADISON Street For Sale

      $1,500,000

      830 S MADISON Street, Covington, LA 70433

      • 3 Beds
      • 3 Baths
      • 2,629 Sq.Ft.
    • 103 PLACE BEAU TRE None For Sale

      $1,399,000

      103 PLACE BEAU TRE None, Mandeville, LA 70471

      • 6 Beds
      • 7 Baths
      • 6,477 Sq.Ft.
    • 1218 FOUNDERS Drive For Sale

      $1,300,000

      1218 FOUNDERS Drive, Bogalusa, LA 70427

      • 4 Beds
      • 4 Baths
      • 6,223 Sq.Ft.
    • 972 CAMPHILL Drive For Sale

      $1,290,000

      972 CAMPHILL Drive, Abita Springs, LA 70420

      • 4 Beds
      • 5 Baths
      • 4,760 Sq.Ft.
    • 23160 LOWE DAVIS RD Road For Sale

      $990,000

      23160 LOWE DAVIS RD Road, Covington, LA 70435

      • 3 Beds
      • 4 Baths
      • 3,120 Sq.Ft.
    • 82060 HIGHWAY 25 Highway For Sale

      $925,000

      82060 HIGHWAY 25 Highway, Folsom, LA 70437

      • 5,660 Sq.Ft.
    • 709 TUNICA BEND Bend Active Under Contract

      $899,000

      709 TUNICA BEND Bend, Covington, LA 70433

      • 5 Beds
      • 4 Baths
      • 4,600 Sq.Ft.
    • 82491 HIGHWAY 437 Highway For Sale

      $740,000

      82491 HIGHWAY 437 Highway, Covington, LA 70435

      • 3 Beds
      • 2 Baths
      • 2,671 Sq.Ft.
    • 23160 LOWE DAVIS Road For Sale

      $690,000

      23160 LOWE DAVIS Road, Covington, LA 70435

      • 3 Beds
      • 4 Baths
      • 3,120 Sq.Ft.
    • 22128 5TH Street For Sale

      $620,000

      22128 5TH Street, Abita Springs, LA 70420

      • 4 Beds
      • 2 Baths
      • 2,669 Sq.Ft.
    • 22.4 Acres HOUGH Road For Sale

      $616,000

      22.4 Acres HOUGH Road, Madisonville, LA 70447

    • 204 AARON Court For Sale

      $590,000

      204 AARON Court, Mandeville, LA 70448

      • 4 Beds
      • 4 Baths
      • 3,526 Sq.Ft.
    • 20490 JOHNSEN CROSSING None Pending

      $550,000

      20490 JOHNSEN CROSSING None, Covington, LA 70435

      • 4 Beds
      • 3 Baths
      • 3,126 Sq.Ft.
    • 107 OLD CREEK Road For Sale

      $514,500

      107 OLD CREEK Road, Folsom, LA 70437

      • 4 Beds
      • 2 Baths
      • 2,280 Sq.Ft.
    • 23 BRADY ISLAND Lane For Sale

      $485,000

      23 BRADY ISLAND Lane, Madisonville, LA 70447

    • 1753 OX BOW Lane For Sale

      $435,000

      1753 OX BOW Lane, Covington, LA 70433

    • (Lot 85) 1745 OX BOW Lane For Sale

      $435,000

      (Lot 85) 1745 OX BOW Lane, Covington, LA 70433

    • (Lot 93) 1696 OX BOW Lane For Sale

      $413,000

      (Lot 93) 1696 OX BOW Lane, Covington, LA 70433

    • 101 DIANNA Court For Sale

      $410,000

      101 DIANNA Court, Covington, LA 70433

      • 3 Beds
      • 2 Baths
      • 1,947 Sq.Ft.
    • (Lot 132) 1423 RIVER CLUB Drive For Sale

      $400,000

      (Lot 132) 1423 RIVER CLUB Drive, Covington, LA 70433

    • 50124 LOUISIANA POLO FARMS EAST Boulevard For Sale

      $399,000

      50124 LOUISIANA POLO FARMS EAST Boulevard, Folsom, LA 70437

      • 3 Beds
      • 2 Baths
      • 1,405 Sq.Ft.
    • 25.64 ACRES DREAMLAND Court For Sale

      $384,600

      25.64 ACRES DREAMLAND Court, Folsom, LA 70437

    • 3 RIVER CYPRESS Lane For Sale

      $381,500

      3 RIVER CYPRESS Lane, Madisonville, LA 70447

    • 1391 RIVER CLUB Drive For Sale

      $375,000

      1391 RIVER CLUB Drive, Covington, LA 70433

    • (Lot 123) 1383 RIVER CLUB Drive For Sale

      $375,000

      (Lot 123) 1383 RIVER CLUB Drive, Covington, LA 70433

    • (Lot 124) 1387 RIVER CLUB Drive For Sale

      $375,000

      (Lot 124) 1387 RIVER CLUB Drive, Covington, LA 70433

    • (Lot 121) 1371 RIVER CLUB Drive For Sale

      $374,000

      (Lot 121) 1371 RIVER CLUB Drive, Covington, LA 70433

    • (Lot 108) 1104 DELTA Lane For Sale

      $360,000

      (Lot 108) 1104 DELTA Lane, Covington, LA 70433

    • (Lot 119) 1359 RIVER CLUB Drive For Sale

      $358,000

      (Lot 119) 1359 RIVER CLUB Drive, Covington, LA 70433

    • (Lot 116) 1341 RIVER CLUB Drive For Sale

      $352,000

      (Lot 116) 1341 RIVER CLUB Drive, Covington, LA 70433

    • (Lot 118) 1353 RIVER CLUB Drive For Sale

      $347,000

      (Lot 118) 1353 RIVER CLUB Drive, Covington, LA 70433

    • 105 MARGUERITE Street For Sale

      $340,000

      105 MARGUERITE Street, Folsom, LA 70437

      • 3 Beds
      • 2 Baths
      • 2,003 Sq.Ft.
    • (Lot 103) 1608 OX BOW Lane For Sale

      $337,000

      (Lot 103) 1608 OX BOW Lane, Covington, LA 70433

    • (Lot 105) 1132 OX BOW Lane For Sale

      $337,000

      (Lot 105) 1132 OX BOW Lane, Covington, LA 70433

    • (Lot 107) 1112 OX BOW Lane For Sale

      $337,000

      (Lot 107) 1112 OX BOW Lane, Covington, LA 70433

    • 1817 DELTA TRAIL None For Sale

      $250,000

      1817 DELTA TRAIL None, Covington, LA 70433

    • (Lot 137) 1392 RIVER CLUB Drive For Sale

      $250,000

      (Lot 137) 1392 RIVER CLUB Drive, Covington, LA 70433

    • (Lot 138) 1396 RIVER CLUB Drive For Sale

      $250,000

      (Lot 138) 1396 RIVER CLUB Drive, Covington, LA 70433

    • (Lot 141) 1833 DELTA Trail For Sale

      $250,000

      (Lot 141) 1833 DELTA Trail, Covington, LA 70433

    • (Lot 142) 1825 DELTA Trail For Sale

      $250,000

      (Lot 142) 1825 DELTA Trail, Covington, LA 70433

    • (Lot 144) 1809 DELTA Trail For Sale

      $250,000

      (Lot 144) 1809 DELTA Trail, Covington, LA 70433

    View All

    Follow Us On Instagram